Architectural & Structural Plans Coordination

Washington Builders LLC provides architectural and structural plan coordination for home renovation, addition, and permit-driven construction projects in Washington, DC.

Many residential projects require professionally prepared plans to meet DC building code and permit requirements. We help homeowners navigate this process by coordinating with qualified architects, designers, and structural engineers as part of the pre-construction phase.

  • Plans are commonly needed for:

    • Home renovations involving layout changes

    • Additions and expansions

    • Structural modifications

    • Load-bearing wall removal

    • Permit applications and revisions

  • We assist by:

    • Coordinating architectural drawings for permit submission

    • Working with structural engineers when required

    • Reviewing plans for constructability

    • Aligning approved plans with the construction scope

    • Supporting permit reviews and inspection readiness

  • By coordinating plans early, we help reduce delays, revisions, and unexpected issues during construction. Our role is to ensure plans align with the project scope, code requirements, and the construction process.

    If your project requires architectural or structural plans, we can help guide the process and coordinate the right professionals.

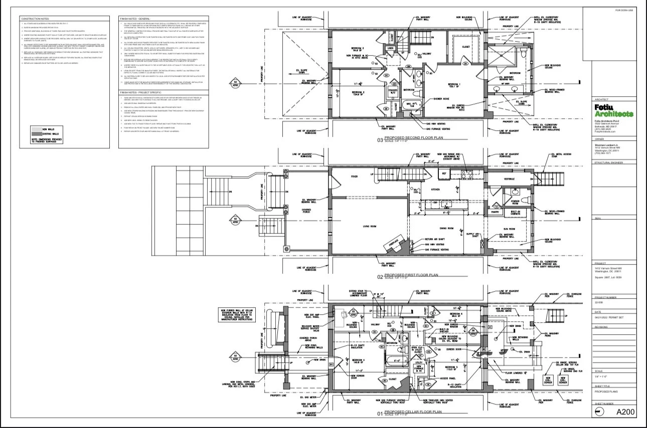
Architectural floor plan drawings showing proposed cellar, first floor, and second floor layouts for a Washington DC rowhouse renovation, including room dimensions, stairs, bathrooms, kitchen, and structural notes.